
分譲地情報
野崎通1号地・2号地
CONCEPT
機能性とデザイン性を両立した、都市型3階建て住宅。
ビルトインガレージからのスムーズな動線と充実した
収納計画により、日常の使いやすさを追求。
2階に配置したLDKは、アイランドキッチンと整った収納ラインにより、
開放感と美しさを兼ね備えた住空間としています。
DESIGN&EQUIPMENT
デザインと仕様設備
EXTERIOR
【外観】
外観
外観デザインに加え、外壁材にも意匠性を施し、周囲の住宅と調和しながらも存在感のある外観を実現。 道路側正面外壁にはプラチナコートを採用し、紫外線による色褪せを抑制。 さらに外壁全体にマイクロガードを施すことで、汚れが付着しにくく、美観を長期間維持します。 ※プラチナコートは道路側正面外壁のアクセント外壁部のみ採用。

EVコンセント
電気自動車用のEVコンセントを標準装備。 深夜電気で充電することで、電気代を抑え家計に優しくエコを実現。

防水コンセント
車掃除の際に便利な防水コンセントを設置。

車庫人感センサーDL
車庫には人感センサー付きのダウンライトを設置。 照明が自動点灯するので夜間での車の乗り降りも安心。

宅配ボックス
不在時でも荷物の受け取りができる宅配ボックスを標準採用。 再配達の削減などにも配慮しています。

デイライトセンサースポットライト
外構とシンボルツリーをライトアップするセンサー付スポットライト。 夜間の視認性がよくなり防犯にも役立ちます。

散水栓
清掃や植栽の水やり、洗車に便利な散水栓を敷地内に設置し、地中収納で外観にも配慮。
ENTRANCE
【玄関】

エントランス
正面壁にはエコカラットや框下間接照明を採用し、間接照明によって素材感が際立つ玄関空間。 調湿・脱臭効果も期待でき、収納計画とあわせて、すっきりとした印象と快適性を両立しています。 ※1号地のみ

鎌錠デッドボルト
バールでのこじあけなどに強い鎌状のデッドボルトを採用。

玄関ドア
リモコンボタン(又はドアノブボタンタッチ)で施開錠できるので、荷物の多い時でも開け閉めが楽にできます。

人感センサーライト
玄関に入ると玄関照明、框下間接照明が自動で点灯。 夜の帰宅時、暗がりの中、手探りでスイッチを探す必要がありません。

玄関収納
大容量の収納を叶えるシューズインクロゼット(又は玄関収納)。 床から天井まで壁一面に設置し、家族全員の靴はもちろんベビーカーや趣味の道具まですっきり収納できます。 ※プランによります。

姿見鏡
お出かけ前の身だしなみチェックができるよう床から天井までの大きなミラーを設置。 空間に奥行きを与え広く見せる効果もあります。

框下間接照明
框下に間接照明を設け、玄関にやわらかな光のアクセントをプラス。 足元をやさしく照らすことで安全性に配慮するとともに、空間に奥行きと上質感をもたらしています。

エコカラット間接照明
壁面にエコカラットを採用し、間接照明で陰影を演出。 素材感が際立つ上質な空間とするとともに、調湿・脱臭効果により快適な室内環境を保ちます。 ※1号地のみ
LIVING
【リビング】

リビング
ドアやクロゼットなど全ての建具の高さが天井まであるので、空間の連続性を感じさせることにより、室内の空間をより広く開放的に演出することができます。 また、引戸の取っ手をなくすことでスッキリとし、行き来の邪魔にもなりません。

引戸建具
引き戸を採用することで風などでバタンと閉まることがなく指詰めなどの事故を低減します。

引戸建具
引き戸を採用することで風などでバタンと閉まることがなく指詰めなどの事故を低減します。

上吊り建具
クロゼットや引戸など全ての建具を上吊りにすることで床にレール溝がなく、スッキリと掃除も楽にこなせます。

ダウンライト標準
LDKは全てダウンライトが設置されているので天井面に凹凸がなくスッキリとした印象に。

上吊り建具
クロゼットや引戸など全ての建具を上吊りにすることで床にレール溝がなく、スッキリと掃除も楽にこなせます。

ダウンライト標準
LDKは全てダウンライトが設置されているので天井面に凹凸がなくスッキリとした印象に。

股木なし
リビングの掃き出し窓はバルコニーとの段差がないフラットなユニバーサル設計。 空間をより明るく広くスッキリ見せる効果があります。

カーテンボックス
全ての窓に天井埋込のカーテンボックスを採用。 カーテンレールを見せない設計でサッシ枠空間をスッキリ演出。 またカーテンだまりをサッシ枠の外側に設けることで窓からの採光を遮りません。
LIVING STAIRS
【リビング階段】

リビング階段
間接照明とダウンライトを効果的に配置し、落ち着きと上質感のあるリビング空間を演出。 アクセントウォールが空間に奥行きを与え、インテリアを引き立てます。 大開口からの採光により、明るさと開放感を確保し、ダイニングまで一体感のあるリビングが実現。

腰壁スリット
腰壁にスリットを設けることで圧迫感を軽減するとともに空間にアクセントを加えます。

階段手摺
人工工学に基づいた握りやすい径の手摺を採用。 転倒事故などを未然に防ぎます。
KITCHEN
【キッチン】
キッチン
全ての引き出しがスライドタイプだから奥まで有効活用することができ、静かで安全性にも配慮したソフトクローズ機能を採用。 底板には湿気や汚れに強いホーローを採用し、機能性にも配慮。

食器洗い乾燥機
家事の時短を実現する食器洗い乾燥機。 引き出し式を採用しすることで楽に食器を収納することができます。

ガラストップコンロ
見た目が美しくお手入れのしやすいガラストップコンロ。 両面焼き魚焼きグリルもついて多彩なレパートリーにも対応。

浄水器一体型混合水栓
カートリッジの交換が手元で簡単にできるカートリッジを内蔵した一体型混合水栓。

ゴミ箱収納ワゴン
ゴミを分別できるゴミ箱収納ワゴンをシンク後ろに設置することで生ゴミなどの処理が容易。 また、ワゴンの前面を面材で統一することでスッキリした印象に。

お掃除ロボット用コンセント
キッチン周辺のクロゼット下部にお掃除ロボット用コンセントを設置。 置き場に困るお掃除ロボットをすっきり収納できます。

シンク前コンセント
料理家電の使い勝手を考慮し、シンク前に2口コンセントを設置。

カップボード
キッチン空間をスッキリ見せ効率よくお料理できるカップボードを標準採用。

キッチンカウンター
一般的なキッチンの奥行より250㎜広い900㎜カウンターを採用。 お料理の材料や道具などを仮置きすることができ家事効率がアップします。

ホーローキッチンパネル
汚れにくくお手入れのしやすいホーロー製のキッチンパネル。 マグネットに対応するのでレシピなどを貼ることができます。
POWDER ROOM
【洗面室】
洗面室
使い勝手とお手入れのしやすさを第一に考えた清潔で機能的な洗面室。

乾太くん
ガスでスピード乾燥。 除菌はもちろん、プラズマクラスターも内蔵したデラックス9㎏タイプを装備。 ※物件により装備していない場合があります。

洗濯用水栓
水圧などで不意に洗濯機のホースが外れても自動止水機能で安心。

リネン庫
タオルや下着などのストックに重宝するリネン庫。 棚の高さを用途に合わせて変えることができます。

三面鏡裏収納
大型三面鏡の裏には家族の洗面用具などが余裕で収まる豊富な収納スペース。

カウンター一体型洗面ボウル
カウンターと洗面ボウルの継ぎ目がないスタイリッシュ一体型。 段差がないのでお手入れも楽々です。

ヘルスメーター収納スペース
ヘルスメーターをスッキリと収納できるスペースを洗面化粧台の下部に確保しました。
BATHROOM
【浴室】
浴室
一日の疲れを癒すバスタイムを豊かにする広々とした浴槽やミストサウナを搭載した快適でお手入れも楽な浴室。

シャワー高さ調整
シャワーヘッドの高さを自由に調整することができるスライドバー。

カワック
お家で本格的なミストサウナが楽しめ、浴室暖房や衣類乾燥など快適で便利な機能を搭載したミストカワックを装備しました。

ワイドミラー
浴室をより広く見せるワイドミラーはゆとりあるくつろぎの時間を演出します。

シャワー高さ調整
シャワーヘッドの高さを自由に調整することができるスライドバー。

カワック
お家で本格的なミストサウナが楽しめ、浴室暖房や衣類乾燥など快適で便利な機能を搭載したミストカワックを装備しました。

ワイドミラー
浴室をより広く見せるワイドミラーはゆとりあるくつろぎの時間を演出します。

ポップアップ水栓
ボタンを操作するだけで簡単に排水ができるポップアップ水栓を採用。

パーフェクト保温
浴室全体を保温材で包むことで浴室内の温かさを逃がさず外の冷気をシャットアウト。 ヒートショックを予防します。

ホーロークリーン浴室パネル
ホーローパネルは皮脂などの油汚れを落としやすくカビも寄せ付けないので、お手入れが簡単。

ミストサウナ
温水の微粒子ミストで保温効果はもちろん、肌の保湿効果や血行促進などのリラクゼーション効果も期待できます。
TOILET
【トイレ】

トイレ
モダンで落ち着きのある空間を創出。 設置されている便器は、清掃性に特化した仕様となっており、継ぎ目のない形状や汚れが付きにくい素材により、日々のお手入れ負担を軽減します。

自動手洗いカウンター
自動水栓を備えた独立型の手洗いカウンターを設置。 手を差し出すだけで水が出るため、水栓金具に触れる必要がなく、非常に衛生的かつ便利です。
MASTER BED ROOM
【主寝室】

主寝室
落ち着いた色合いと照明計画により、柔らかな光が空間を包み込みます。 一日の疲れを癒す、心安らぐプライベート空間を実現しています。

ベッド横コンセント
ベッドヘッドの横に3路スイッチを設け、就寝前など照明の操作が楽にできます。
OTHERS
【その他】

防犯ガラス
全ての1階サッシには警察庁や国交省など官民合同会議の厳しい防犯性能試験に合格したCPマークの防犯合わせガラスを採用。 ※形状により防犯合わせガラスの設定がないサッシに関しては、CPマークの防犯フィルムを貼っています。

ガス温水式床暖房
LDKの3か所に温水を利用して足元から部屋全体を温める床暖房を採用。 埃などを巻き上げないので、クリーンな空気を保ちます。
※掲載の設備写真は一部参考写真を含みます。実際の仕様・形状・色味等は物件ごとに異なります。
PHOTO GALLERY
フォトギャラリー









- 販売価格
- 6,280万円(税込)
- 月々返済額
- 159,685円(税込)
- 支払い例
- 頭金0円(税込)/ボーナス払い0円(税込)
※上記支払い例の借入条件:6,280万円 りそな銀行 借入・変動金利1.03%・40年ローンの場合
※2026年4月4日現在
OUTLINE
【概要】
名称
- KOBELIA野崎通1号地
所在地
- 神戸市中央区野崎通七丁目337番地1
住所
- 兵庫県神戸市中央区野崎通7丁目
総戸数
- 1戸
交通
- 阪急電鉄神戸線「春日野道」駅徒歩9分
地目
- 宅地
用途地域
- 第1種住居地域
建蔽率·容積率
- 70%、160%
建物構造
- 木造ガルバリウム鋼板葺3階建
建築年月
- 竣工済(令和8年1月)
引渡し
- 即入居可
土地面積
- 62.95㎡
私道負担
- 有(1.39㎡)
土地有効面積
- 61.56㎡
セットバック
- 済
土地権利
- 所有権
都市計画
- 市街化区域
高度地区
- 第5種高度地区
防火地域
- 準防火地域
その他制限
- 無
建物面積
- 1F/40.22㎡ 2F/38.44㎡ 3F/37.26㎡
建物延床面積
- 115.92㎡
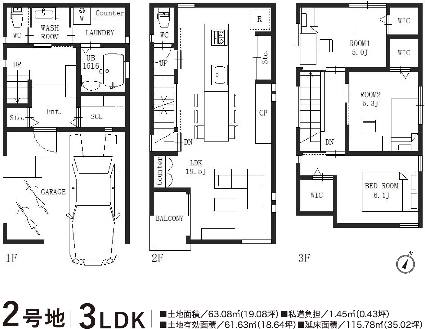
間取り
- 3LDK
駐車場
- 1台
設備
- 都市ガス、水道(公営)、下水、電気
接道状況
- 南側:法42条2項道路(みなし道路)
現況幅員/約3.7m 接道間口:5.73m 建築確認番号
- 第HK25-40346号
販売価格(税込)
- 6,280万円(税込)
名称
- KOBELIA野崎通2号地
所在地
- 神戸市中央区野崎通七丁目337番地6
住所
- 兵庫県神戸市中央区野崎通7丁目
総戸数
- 1戸
交通
- 阪急電鉄神戸線「春日野道」駅徒歩9分
地目
- 宅地
用途地域
- 第1種住居地域・第1種中高層住居専用地域
建蔽率·容積率
- 70%、160%
建物構造
- 木造ガルバリウム鋼板葺3階建
建築年月
- 竣工済(令和8年1月)
引渡し
- 即入居可
土地面積
- 63.08㎡
私道負担
- 有(1.45㎡)
土地有効面積
- 61.63㎡
セットバック
- 済
土地権利
- 所有権
都市計画
- 市街化区域
高度地区
- 第5種高度地区/第3種高度地区
防火地域
- 準防火地域
その他制限
- 無
建物面積
- 1F/40.56㎡ 2F/37.91㎡ 3F/37.32㎡
建物延床面積
- 115.78㎡
間取り
- 3LDK
駐車場
- 1台
設備
- 都市ガス、水道(公営)、下水、電気
接道状況
- 南側/法42条2項道路(みなし道路)
現況幅員/約3.7m 接道間口:5.81m 建築確認番号
- 第HK25-40350号
販売価格(税込)
- 6,280万円(税込)
資料請求・見学予約
- 入力画面
- 確認画面
- 完了
以下のフォームの項目に入力して
送信してください。
以下の内容で間違いがなければ、「送信する」ボタンを押してください。








